ちりめん洋服さきぞうの創業者田村佐起三社長が昭和の終わり頃から不動産に投資を始められ、その不動産の仲介や管理に携わることが出来ました。
私は、バブルの崩壊と同時に不動産の業界に入り、共同経営を解消、同氏から出資の機会を戴き15年目の2004年1月、サキゾービル(現在:さきぞう不動産)株式会社を設立、私、廣瀬善彦が代表取締役に就任致しました。
同氏の、先見の明ある前向きな事業投資展開に「さきぞう」は「グループ」と化し、同氏は会長に就任されました。その時点での業容は京都市内外に40を超える不動産を保有するまでに至り、テナント数は百を超え、業務は自然と拡大を続けてまいりました。
私は、この機会に巡り会い、取り扱う不動産は居住用から事業用へと180度転換、不動産に対して、自ずと視野が拡大することとなりました。
京都街中の事業用不動産に特化し、京都の賑わいと繁栄に貢献できることを目指し、売買仲介、テナント・リーシング(出店者誘致)など提案型の活動を行い、多くのご縁を戴きました。
さきぞうグループの不動産事業部として、不動産活用で培ったノウハウと、みなさまから戴いた、多くのご縁に、感謝の心を忘れずに、みなさま其々に、確かにお返しできるように一歩一歩進んでまいります。

さきぞう不動産株式会社
代表取締役 廣瀬善彦
さきぞう室町鯉山町
- 契約形態 定期借家契約
- 契約期間 10年(2年解約不可)
- 用途 店舗(飲食、物販、サービス対応)
- 賃料/共益費 右記参照
- 敷金 3ヶ月
- 礼金 2ヶ月
- 自治会費 1,250円/月額
- 保証会社 要加入(最大1ヶ月相当額)
- 火災保険 要加入
- 引き渡し スケルトン渡し(通路壁なし)
*鯉山保存会協力金/出店時一時金5万円/詳細は鯉山保存会へお問い合わせください。
*京都さきぞう会発行のお中元、お歳暮販促目的招待券(年間千部発行)協賛ご希望の方はお問合せください。
*NPO法人京都高瀬川繁栄会/月刊「高瀬川だより」は毎月お届けします。裏面の広告はお問い合わせください。
*融資ご希望の方はお問合せください。
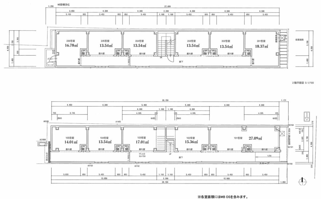
- 物件名 仮)さきぞう室町鯉山町 新築計画
- 所在地 〒604-8163 京都市中京区室町通六角下る鯉山町516番1
- 交通 阪急京都線「烏丸駅」徒歩6分・地下鉄烏丸線「烏丸御池駅」徒歩6分
- 竣工予定 2026年3月竣工予定
- 構造・規模 鉄骨造 地上2階建
- 建物用途 店舗
- 延床面積 167.19㎡
- 募集区画 全11区画(1区画あたり4.05坪~8.14坪)
- 特徴 ・ワンオペレーション可能な小型店舗・区画変更(増床)等相談承ります
| 号室 | 面積/㎡ | 坪数 | 賃料(税別) | 共益費(税抜) | |
| 1階 | 101 | 27.09 | 8.19 | 330,000 | 20,000 |
| 102 | 15.36 | 4.64 | 170,000 | 10,000 | |
| 103 | 17.01 | 5.14 | 170,000 | 10,000 | |
| 104 | 13.54 | 4.09 | 170,000 | 10,000 | |
| 105 | 14.02 | 4.24 | 170,000 | 10,000 | |
| 2階 | 201 | 18.37 | 5.55 | 180,000 | 10,000 |
| 202 | 13.54 | 4.05 | 140,000 | 10,000 | |
| 203 | 13.54 | 4.09 | 140,000 | 10,000 | |
| 204 | 13.54 | 4.09 | 140,000 | 10,000 | |
| 205 | 13.54 | 4.09 | 140,000 | 10,000 | |
| 206 | 16.78 | 5.07 | 170,000 | 10,000 |
※諸条件は予告変更される場合がございます
※表示面積にはDSを含みます
京都市内のテナントはさきぞう不動産へお任せください。
貸店舗・事務所をはじめ収益物件・売店舗・土地などのご相談もお待ちしております。
| 住所 | 〒604-8023 京都市区中京区蛸薬師通河原町東入 SAKIZO蛸薬師ビル4F |
| TEL | 075-253-0707 |
| FAX | 075-253-0706 |
| 営業時間 | 10:00 ~ 18:00 |
| 定休日 | 土日・祝日 |
| 免許番号 | (公社)京都府宅地建物取引業協会会員 (公社)全国宅地建物取引業保証協会会員 免許番号:京都府知事(3)第11900号 |
| 業務内容 | テナントリーシング、不動産販売、売買仲介、不動産(テナント・マンション)賃貸、 ビル・マンション管理、メンテナンス、住宅・店舗建て替え、リフォーム、 不動産・資産活用コンサルティング、損害保険代理業 |
| 取扱エリア | 京都市中京区、下京区、上京区、東山区などのテナント中心 |
